大孝テナントT 荒井の賃貸テナント!高砂荒井テナント事務所浜国|相生不動産株式会社
※事業用物件は 賃料・共益費・管理費等が税別表記です
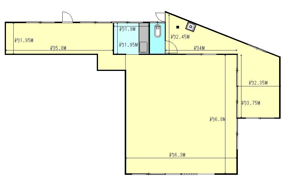
【スタッフからのイチオシポイント!】大孝テナントT人気の荒井エリア☆貸事務所・貸店舗☆浜国道路沿い☆約40.34uと広々使えます。水道代オーナー様負担☆
兵庫県高砂市荒井町若宮町13-10【山陽電鉄本線 荒井駅徒歩13分】にある賃貸テナントです。1981年5月築の1階建てのテナントで、物件は1階建ての1階部分です。物件の広さは40.34m2です。 ※物件のもっと詳しい内容や入居時期、諸条件のご相談など、ホームページには掲載が間に合わず載せきれていない情報もございます。 気になることが御座いましたらお気軽にメールにてお問い合わせください。
※各種情報と差異がある場合は現況優先となります
あなたにおすすめの類似物件最近検索した条件一覧
| ||||||||||||||||||||||||||||||||||||||||||||||||||||||||||||||||||||||||||||
| ▲ページのTOPへ戻る | ||||||||||||||||||||||||||||||||||||||||||||||||||||||||||||||||||||||||||||


